
| 物件名 | 掛川市各和 1号棟 |
|---|---|
| 価格 | 2390万円 |
| 土地面積 | 206.56㎡(約62.48坪) |
| 建物面積 | 110.13㎡(約33.31坪) |
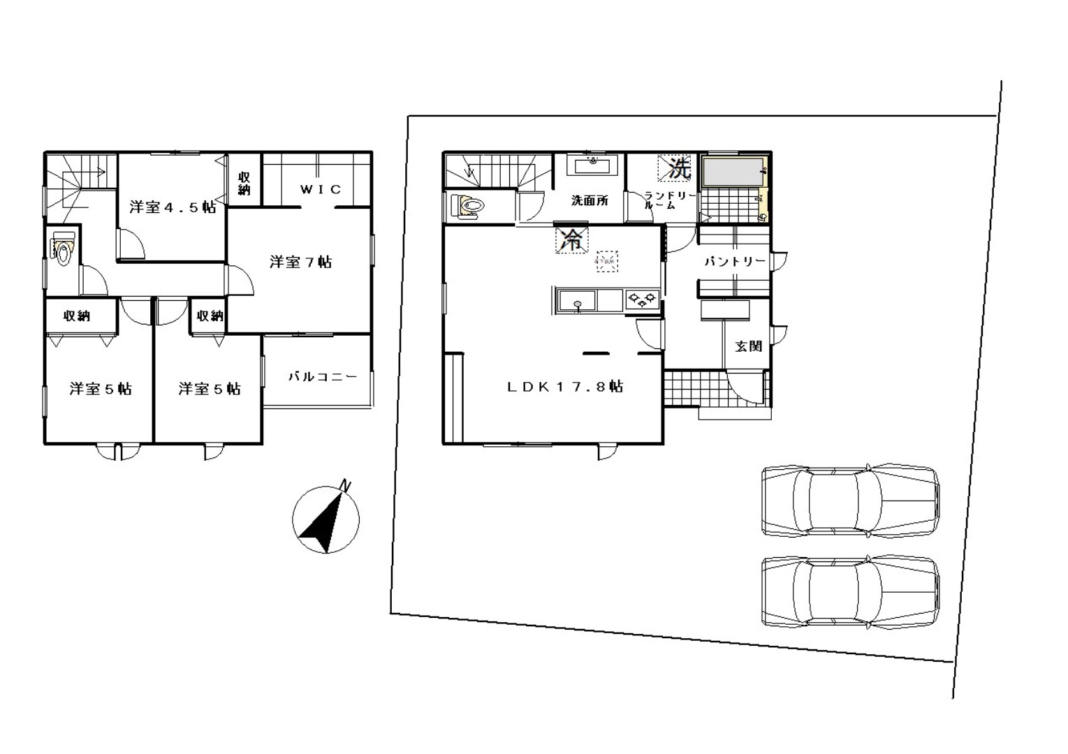
| 間取り | 4LDK |
| 構造 | 木造スレート葺 2階建 |
| 築年月日 | 令和8年6月完成予定 |
| 住所 | 掛川市各和 |
| 学区 | 和田岡小学校、桜が丘中学校 |
| 備考 | 建築確認番号:第KS125-0420-60231号、地盤保証20年付にて安心材料と言えます。
ただ、学校やスーパー等距離がありますので慣れが必要かもしれません。また、一定の地域付き合いがあるところとなります。 |
| その他 | 角地的ロケーションになり開けていて開放感があり日照も良好な物件になります。長期優良住宅+性能評価6項目最高等級にて安心住宅になります。未完成物件ですが内覧可能ですし完成物件も別途御覧いただける現場がございます。 |
| 取引態様 | 仲介 |
